Třmen čtvercový art.3575 A4, a=202, M16: 200/200mm
Čtvercové "U" třmeny, bez matice a podložky
Jakost A4
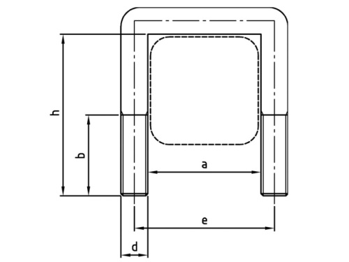
Průměr (d) 16,00 mm
Délka závitu (b) 45,00 mm
Rozměr (h) 235,00 mm
Rozměr (a) 202,00 mm
Rozměr (e) 218,00 mm
Máme největší výběr nerezového materiálu skladem.
Plechy řežeme do konkrétních tvarů.
Tyčový materiál dělíme dle potřeby.
Rádi Vám poradíme s výběrem.